ΓΛΥΦΑΔΑ, Πολυτελής, Έξυπνου Σχεδιασμού Μεζονέτα ,133 τ.μ

Αξία: € 750.000

Περιγραφή Ακινήτου

Στην ήσυχη και περιζήτητη περιοχή της Πανιωνίας στη Γλυφάδα, σε κοντινή απόσταση από το κέντρο και τη θάλασσα, παρουσιάζεται μια ξεχωριστή κατοικία υψηλής αισθητικής που συνδυάζει άνεση, λειτουργικότητα και μοντέρνο design.

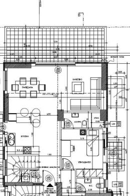
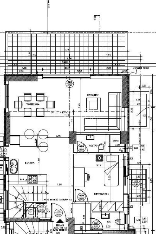
Αναπτύσσεται σε δύο επίπεδα, με τον κύριο χώρο να ανοίγεται σε έναν ενιαίο, φωτεινό όγκο που περιλαμβάνει καθιστικό, τραπεζαρία και κουζίνα με breakfast nook, ιδανικό για στιγμές χαλάρωσης και καθημερινών απολαύσεων. Στο ίδιο επίπεδο βρίσκεται ένα άνετο WC και μια πολυτελής master σουίτα με ιδιωτικό μπάνιο και έξοδο στον εξωτερικό χώρο.

Στον επάνω όροφο, δύο επιπλέον υπνοδωμάτια και ένα πλήρες μπάνιο προσφέρουν ιδιωτικότητα και άνεση για οικογένεια ή φιλοξενούμενους. Η αρχιτεκτονική του ακινήτου αναδεικνύεται από τις μεγάλες ανοιγόμενες επιφάνειες που φέρνουν το φως και τη θέα στο εσωτερικό.

Στο υπόγειο, μια μεγάλη αποθήκη και μία θέση στάθμευσης με υποδομή φόρτισης ηλεκτρικού αυτοκινήτου καλύπτουν απόλυτα τις πρακτικές ανάγκες της καθημερινότητας.

Η κατοικία διαθέτει πλήρως αυτόνομα συστήματα θέρμανσης και ψύξης με αντλίες θερμότητας, προσφέροντας ενεργειακή απόδοση και άνεση καθ’ όλη τη διάρκεια του έτους προσφέροντας ποιότητα ζωής και υψηλό επίπεδο διαβίωσης

Λεπτομέρειες Ακινήτου

Κωδ. Ακινήτου (ID): 34672
Νομός: ΑΤΤΙΚΗ
Περιοχή: ΓΛΥΦΑΔΑ
Τύπος: Πώληση
Είδος: Μεζονέτα
Έτος: 2025
Δωμάτια: 3
Εμβαδόν: 133 τ.μ
Όροφος: 1 ος, 2 ος

Χαρακτηριστικά Ακινήτου

Ενεργειακή κλάση
Εξαιρείται
Θέση στάθμευσης
Υπόγειο
Θέρμανση
Air-condition
Αντλία θερμότητας
Είδος κατασκευής
Κατάσταση
Υπο κατασκευή
Τύπος δαπέδων
Ξύλο
Πλακάκι
Κουφώματα
Αλουμινίου
Ζώνη
Οικιστική
Προσανατολισμός
Νοτιοανατολικός
Θέση
Προσόψεως
Κλίση
Επίπεδο
Διαθέτει
WC
Αποθήκη
Βεράντα
Διπλά τζάμια
Εσωτερική σκάλα
Ηλιακό θερμοσίφωνα
Κουζίνες
Μπάνιo - 2
Πόρτα ασφαλείας
Σαλόνια
Σίτες
Συναγερμό
Κατάλληλο για
Επενδυτική χρήση
Χαρακτηριστικά
Επιτρέπονται κατοικίδια
Πολυτελές
Φόρτιση ηλεκτρικού αυτοκινήτου
Φωτεινό
Απόσταση απο (μ) - 2500
Θάλασσα

Ενδεικτική Τοποθεσία

Με τη χρήση αυτού του ιστότοπου, αποδέχεστε τη χρήση των cookies. Περισσότερες λεπτομέρειες
Κατάλαβα